At a Glance
4 Bedrooms1 Master suite
Exclusive use
Open-plan living
Private staff
Best For
Families and groups of friendsGood to Know
A brand new build chalet with all the modern touches needed to be a luxury, boutique chalet, complete with private outdoor sauna for total body relaxation. Designed with a modern alpine theme, with dedicated private staff and only 2 minutes away from the lifts and slopes Chalet Frieda offers a new level of intimate, private chalet luxury.Years in the planning and we are delighted to add Chalet Frieda, brand new and exclusive to our portfolio. A beautiful, modern alpine chalet sleeping up to 10 people, the perfect number for an extended family or families and friends to enjoy all St Anton has to offer.
The Chalet
Chalet Frieda is part of a new chalet development, set back from the street and enjoying quiet, peaceful nights in its secluded location.
Location is everything and Chalet Frieda is only a 2 minute stroll to the Nasserein lift station with our ski hire shop, the children’s ski school slopes and meeting points and small hub of local bars and restaurants. A further 5 -8 minutes and you are in the centre of the resort and close to the Gampen, Galzig and Rendal lift stations.
Designed to a modern Alpine theme, the style and facilities are timeless and blend well into the local surroundings. With bespoke finishing touches befitting of an intimate, boutique style chalet you can relax in your own luxurious home away from home.
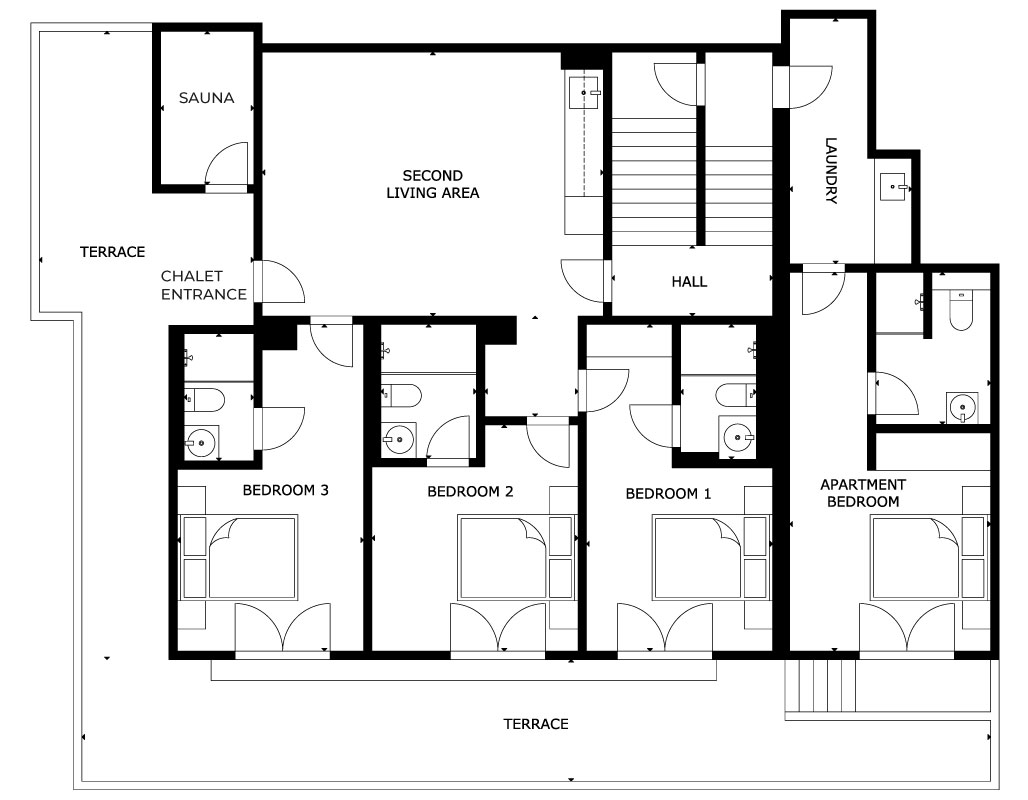
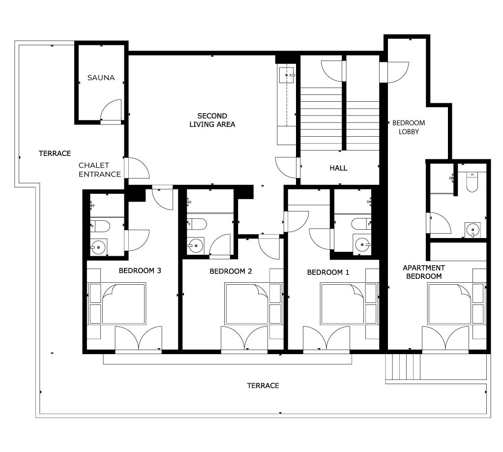
With 4 well equipped en-suite bedrooms on the ground floor, the corridor here opens out to the winter terrace, where the outdoor sauna and fire pit seating area awaits you – offering the perfect place to unwind and relax. Up the stairs and the open living space entices you in, to relax with a glass of fine red wine by the fire or to sit back and watch the latest movies on the big screen TV. The living area extends into the dining area and the show kitchen, to watch your chef put the finishing touches to your very own bespoke menu plan.
Children can enjoy the array of games and toys we have for you and the living area also opens out to a large balcony terrace with outdoor seating, or can build a snowman in the private gardens surrounding the sauna and relaxing area.
The master bedroom sits off the main living room allowing you lots of space and privacy in a huge en-suite with bathtub, your own private sanctuary!
Chalet Frieda, named after the original land owner way back in the 50’s, is a stunning addition to our portfolio. Offering a perfect solution for those with 8 – 10 people, opening up more options for family or extended family or a 2 families to enjoy our unique service and unrivalled hospitality and proximity to the slopes and ski schools!
Groups of friends can enjoy privacy and unwind with private dinner parties and free flowing wine and bubbles and our corporate clients can enjoy either a small intimate private space for discussions and meetings after a day on the slopes, or enjoy the connection to our Chalet 47 and the neighbouring Lodge for larger groups.
Image Gallery
Layout
Location
Prices
Prices for 25/26 Season
Please enable JavaScript in your browser to view our calendar.
Service
Concierge Service
- Comprehensive pre-arrival service
- Full in-resort concierge service
- Bespoke driver service available 7 days a week: 08:30 – 20.00.
- Additional hours available by prior arrangement.
- The following can be arranged: flights, transfers, heli-transfers, ski hire, ski lessons, childcare, in-chalet massage, restaurant bookings, in-resort activities & bookings for special occasions
Service
- Staff
- Private Chefs
- Concierge and Host team
- Resort Driver team
- Private dinners on 5 out of 7 nights or 2 out of 3 or 4 nights
- Open Bar
Finishing Touches
- A selection of beautiful bath and beauty products
- Daily communal housekeeping
- Mid-week towel change
- High quality dressing gowns and slippers
- Fully smart TV’s in every bedroom
- Open mini bar, replenished daily
- Hairdryers in all bedrooms
- Outdoor Sauna and fire pit
- Unlimited WiFi access
Facilities
- Luxury catered chalet
- 4 ensuite bedrooms
- Master suite with ensuite
- Saunas
- Large open planned living and dining space
- Open fireplace
- Apple TV / Netflix
- Music docks
- Flat screen TVs
- Wifi throughout
The Resort
Keeping its historic tradition and charm, St Anton am Arlberg has managed to seamlessly evolve into a more modern, international and sophisticated resort. Professional skiers and boarders from around the world, mix with families and friends who all flock here to enjoy the extensive and diverse terrain as well as the endless off piste that have made this resort so very special. Off the slopes and this resort effortlessly caters for the more discerning winter enthusiast who appreciates the finer things in life. Slope side bars and terraces bustle with sun worshippers and après ski partiers and the vibrant main street with its shops, bars, clubs and restaurants offer an eclectic international mix which highlights its world wide reputation. All this blends together to really make this resort stand out as one of the “must visit”, top end ski resorts in the world.
Travel
NEAREST AIRPORTS:
Innsbruck: 1 hour
Zurich: 2 hours
IMPORTANT INFORMATION FOR TRAVELLING TO AUSTRIA:
www.gov.uk/foreign-travel-advice/austria
www.gov.uk/knowbeforeyougo
You might also like

